SCLC Presents the 77th Annual Forest Products & Construction Equipment Exposition
Shasta District Fairgrounds 1890 Briggs St. Anderson CA 96007
Money Does Grow on Trees – Let's Manage It
February 5-7, 2026
Welcome, Exhibitors!
Thank you for your interest in supporting this event! The Board of Directors and the staff look forward to seeing you at this year's Expo. Please do not hesitate to call if you have any questions!
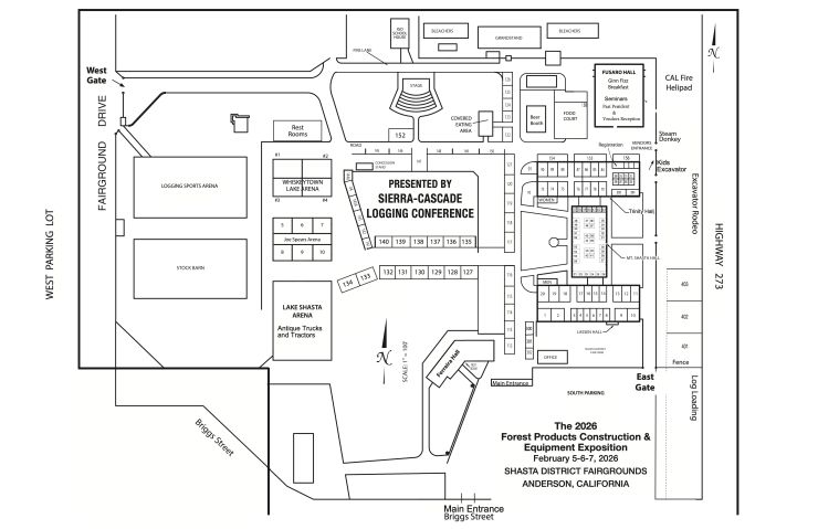
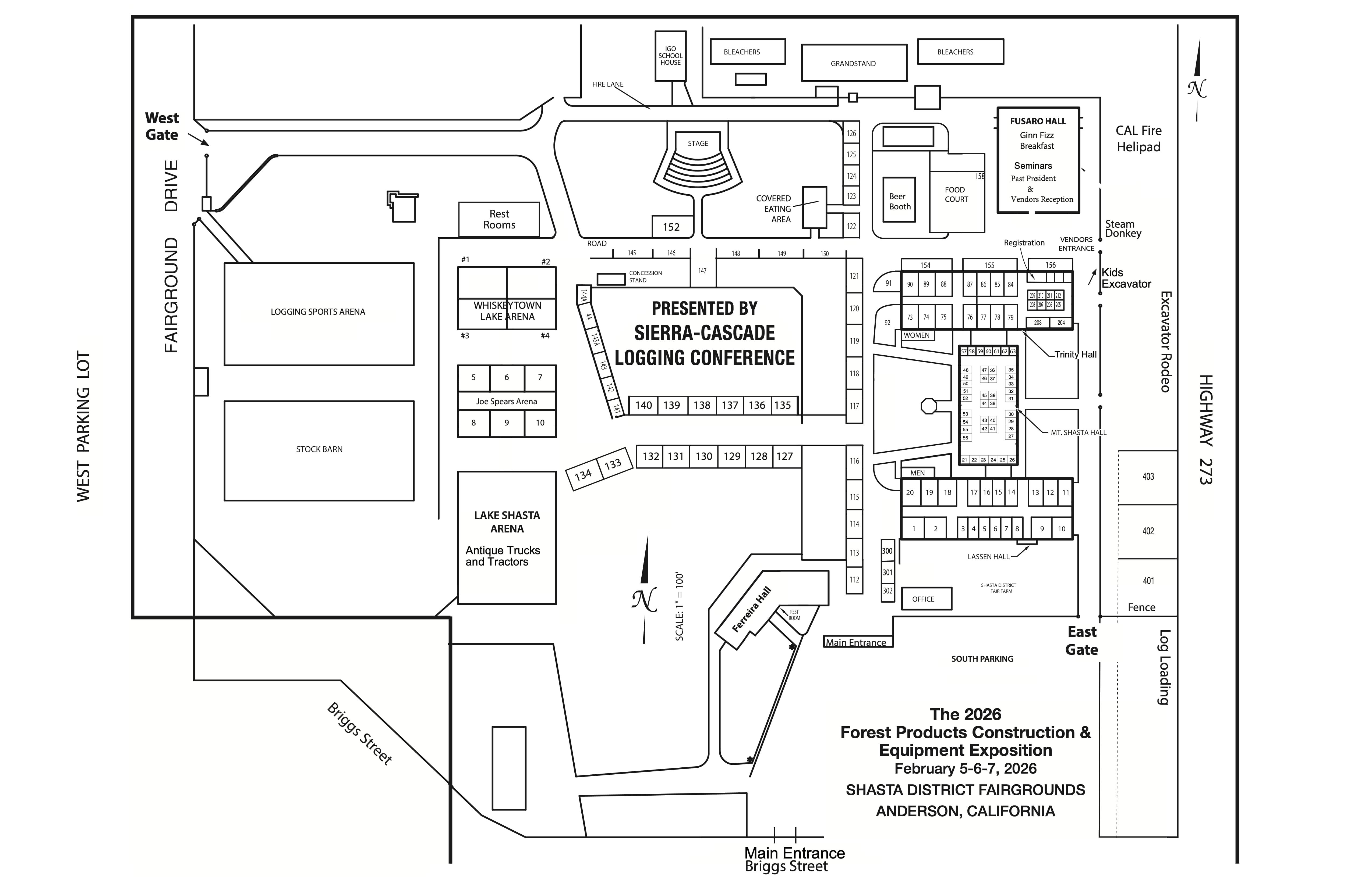
Below you will find a map that can be used as reference when deciding on space numbers. We will make every effort to place you according to your preferences.

Click to image to enlarge
To register for the Sierra-Cascade Forest Products & Equipment Expo please fill out either the downloadable form, or our online form.
Note that when registering you should select three (3) booth locations that you prefer. Some spaces will already be reserved, so we will try our best to get you the best possible location(s), and work with you in the event that any selected space is already reserved.
Questions
General Questions
Kathie Muse
Muse Trucking Co.
Redding, CA 96001
(530) 222-1290
[email protected]
Outside Space
Frank Muse
Muse Trucking Co.
Redding, CA 96001
(530) 246-8573 [Office]
[email protected]
Lassen Hall is sold out!
